Regione Toscana

  • Seguici anche su

Azienda USL Toscana nord ovest

Massa Carrara | Lucca | Versilia |Pisa |Livorno

 

Lido di Camaiore, 11 marzo 2024 – Si è tenuta questa mattina (11 marzo) la consegna dei lavori alle ditte incaricate per le Case della Comunità nei comuni di Viareggio, Camaiore e Pietrasanta, con l'obiettivo di dotare il territorio della Versilia di strutture territoriali in grado di rispondere in maniera adeguata ai bisogni di salute della popolazione di riferimento.

Tra le autorità presenti all’incontro, che si è svolto nella sala riunioni di Villa Pergher a Lido di Camaiore: il presidente della Regione Toscana Eugenio Giani, il sindaco di Viareggio e presidente della conferenza zonale dei sindaci Giorgio Del Ghingaro, il sindaco di Camaiore Marcello Pierucci,  il sindaco di Pietrasanta Alberto Stefano Giovannetti, altri amministratori della zona Versilia, le parti sociali.

Per l'Azienda sanitaria hanno partecipato, tra gli altri: il direttore amministrativo dell’Asl Toscana nord ovest Gabriele Morotti, il direttore di Zona Distretto Alessandro Campani, il direttore del dipartimento tecnico e patrimonio Nicola Ceragioli con i suoi colleghi degli uffici tecnici, oltre a vari rappresentanti dei servizi socio-sanitari territoriali.

“Quello di oggi - evidenzia il presidente Giani - è un ulteriore tassello concreto che va verso tutela del sistema sanitario pubblico, che sta da sempre in cima alle nostre priorità. Lo possiamo fare grazie alla missione 6 del PNRR:  la Regione si occupa della “direzione d'orchestra” e poi c’è il grande lavoro sul territorio delle nostre Aziende sanitarie territoriali e dei Comuni, che con i loro uffici tecnici stanno portando avanti questi interventi fondamentali per i nostri cittadini e stanno avviando nei tempi previsti i cantieri. Sono contento di poter consegnare simbolicamente i progetti alle ditte incaricate di eseguire i lavori, per arrivare ad avere nel corso del 2025 tre Case della Comunità adeguate alle esigenze dei cittadini in realtà importanti della nostra regione come Viareggio, Camaiore e Pietrasanta. A livello regionale abbiamo programmato ben 77 interventi su Case della Comunità e oltre 30 per Ospedali di Comunità. Fondamentale è a livello territoriale la presenza in queste strutture dei medici di famiglia, degli infermieri, degli ambulatori specialistici. In più abbiamo intenzione di istituire in Toscana una ventina di Pir (Punti di intervento rapido) aperti sulle 12 ore, per i codici bianchi o verdi, quindi per le patologie più banali, in maniera da alleggerire un po’ la pressione sulle strutture di Pronto soccorso nei nostri ospedali. L’impegno sul territorio garantirà una sempre maggiore capacità di presenza del nostro sistema regionale, che già viene considerato il terzo in Italia per il rispetto dei livelli essenziali di assistenza (LEA). E’ fondamentale anche continuare ad innovare processi e percorsi sanitari attraverso investimenti in nuove tecnologie, ad esempio con la telemedicina. Ricordo che la nostra Regione può contare su un finanziamento complessivo di 453 milioni con fondi PNRR e che tutti i progetti si stanno definendo, come avvenuto qui in Versilia, per il bene dei nostri cittadini”.

“E’ un momento importante - dice il sindaco Del Ghingaro - perché siamo all’inizio di interventi che permetteranno di consegnare alla Versilia tre vere Casa della Comunità, che potranno rappresentare sicuri punti di riferimento per la nostra popolazione. Con l’Asl abbiamo portato avanti a più livelli un lavoro proficuo, che ci consente di guardare al futuro con ottimismo, verso una sanità sempre più vicina ai cittadini.  Per quanto riguarda nello specifico i lavori previsti da oggi fino all’inizio del 2025 nella ex circoscrizione Viareggio Nuova, al Terminetto, ricordo che la nostra Amministrazione ha messo a disposizione l’immobile: grazie a un accordo che abbiamo recentemente siglato, l’Azienda sanitaria avrà la concessione in comodato gratuito dello spazio in Piazza del Buonconsiglio per 30 anni, ulteriormente prorogabili fino ad ulteriori 20, occupandosi di tutte le spese contrattuali e per utenze. Con Fondi PNRR e altri fondi verranno realizzati lavori importanti che trasformeranno l’edificio una Casa della Comunità. La concessione dell’immobile alla Asl rientra in un piano più vasto di riorganizzazione dei servizi sanitari sul territorio: la struttura, che in questi anni è servita da hub vaccinale, ospiterà - al termine del cantiere che viene avviato oggi - prestazioni specialistiche e distrettuali oltre ad aggregazioni mediche. L’ospedale Versilia è tra i migliori a livello di area vasta, e ne siamo orgogliosi, ma è necessaria una sempre maggiore integrazione con territorio. Ecco, la nuova Casa della Comunità al Terminetto lavorerà in sinergia con l’ospedale di Comunità che sorgerà all’ex Tabarracci ma anche con la struttura ospedaliera. Un modo intelligente di usufruire dei fondi PNRR, che porterà Viareggio ad avere una soluzione integrata di sanità territoriale ospedaliera di grande qualità e con caratteristiche innovative.  Questo percorso è stato seguito costantemente dalla Conferenza zonale dei sindaci. Ci sarà anche un nuovo ospedale di comunità, sempre a Viareggio (6 milioni di euro di investimento) e nel discorso rientrerà Massarosa,  con una quarta rinnovata Casa della Comunità, che verrà realizzata con fondi ex articolo 20. Insomma, tra un anno e mezzo Versilia potrà contare su servizi socio-sanitari di grande qualità”. 

“Con la Casa della Comunità di Camaiore - sottolinea il sindaco di Camaiore Pierucci – la sanità si avvicina davvero al territorio.  I nostri cittadini potranno giovarsi di una struttura ampliata e rinnovata in fruibilità, funzioni e servizi. Ci sanno infatti nuovi ambulatori e  ulteriori servizi socio-sanitari, previsti nel progetto esecutivo dell’Asl, approvato dalla nostra Giunta Municipale, per la riqualificazione e la rigenerazione dell’ex ospedale San Vincenzo. L’immobile, dopo essere stato dismesso dalle sue funzioni di nosocomio (che ricopriva da fine ‘800) nel 2002, a seguito dell’apertura dell’ospedale unico Versilia, accoglie adesso al suo interno un distretto socio-sanitario e alcuni servizi offerti da cooperative sociali locali (come RSA e CAP per soggetti con disabilità). A fine lavori l’edificio garantirà ulteriori significativi servizi, con interventi di riqualificazione che interesseranno una porzione di piano terra e del terzo piano. E’ questo il frutto di un lungo percorso di collaborazione con l’Asl per ampliare l'offerta socio-sanitaria territoriale. L’adeguamento della Casa della Comunità è un grande risultato per cittadini e territorio, con la dislocazione di servizi essenziali ottenuta rigenerando un immobile e donandogli nuova vita e nuove funzioni utili e necessarie. Ringrazio l’Asl per l’impegno profuso che permetterà alla collettività di Camaiore di fare un notevole passo in avanti per la fruizione capillare del servizio sanitario nazionale.  Si tratta di un percorso virtuoso tra conferenza zonale dei sindaci, comune e Azienda sanitaria. Il nostro comune ha un territorio molto vasto e c'era davvero necessità di questa nuova struttura territoriale”.

“Siamo contenti di presentare oggi - aggiunge il sindaco di Pietrasanta Giovannetti – l’inizio dei lavori per la rinnovata Casa della Comunità di Pietrasanta. Il progetto è frutto di un lavoro comune e di una sinergia, che rappresentano sempre un metodo di lavoro vincente, da portare avanti ogni giorno. La giornata di oggi rappresenta un’altra tappa significativa per soddisfare i bisogni dei cittadini, per la loro sicurezza e per il loro diritto di avere a disposizione servizi sociosanitari all’altezza delle aspettative. Il nostro compito è proprio quello di programmare interventi importanti, come questo, per risolvere le tante problematiche legate alla salute. Ringrazio in particolare la Regione, il presidente della conferenza zonale Del Ghingaro e l’Asl: i fondi messi a disposizioni sono rilevanti e ci permettono,  grazie all’impegno costante da parte di tutti gli attori, di introdurre nuovi servizi, di cui la popolazione ha estremamente bisogno. Dobbiamo essere efficaci e tempestivi e assicurare strutture efficienti per la nostra sanità, incrementando e migliorando le attività già presenti sul nostro territorio. Un altro esempio che segnalo per Pietrasanta è la nuova farmacia, che sta per partire e che lavorerà anche con la telemedicina”. 

“Siamo soddisfatti - afferma il direttore amministrativo dell’Asl Toscana nord ovest Morotti - di dare avvio in Versilia a questi tre cantieri per l’adeguamento di Case della Comunità. Un investimento rilevante per offrire maggiori servizi all'interno di strutture più ampie in grado di rispondere alle nuove esigenze sanitarie oltre ai requisiti normativi. E’ un tassello rilevante, con un costo complessivo degli interventi di 2 milioni e 270mila euro (da PNRR, fondi statali, Regione Toscana e Asl). Si tratta di un segnale di attenzione da parte nostra e della Regione per il territorio della Versilia, al quale dobbiamo garantire servizi socio-sanitari adeguati alle esigenze. Con questa consegna dei lavori alle ditte entriamo in una fase più operativa. Sono inoltre contento del fatto che si tratti di aziende toscane. Ringrazio in maniera particolare, oltre agli enti coinvolti e tutti gli operatori, l’ufficio tecnico aziendale, che in questo periodo è sottoposto ad un super lavoro (tanti progetti e scadenze da rispettare) e il direttore di Zona distretto Campani”.

“Adeguare tre Case della Comunità - sottolinea il direttore della Zona Distretto Versilia Campani - significa garantire ai cittadini l’accesso ai servizi di assistenza primaria: medici e pediatri di famiglia, specialisti ambulatoriali interni, infermieri di famiglia o comunità, infermieri che operano nell’assistenza domiciliare, gli operatori del sociale. Nella nostra zona c’era già una rete di Case della Salute, che adesso viene adeguata per diventare una rete di Case della Comunità (hub e spoke) sempre più capillare e con vari professionisti in grado di approcciarsi ai problemi da vari punti di vista. Questo è il nostro obiettivo principale. I bisogni della salute necessitano infatti di una sempre maggiore cooperazione e la Casa della Comunità rappresenta il luogo in cui i cittadini possono trovare risposte in ambito territoriale ma anche in collegamento con i servizi ospedalieri in una sinergia che c’è già ma che dobbiamo ulteriormente sviluppare”.

Il direttore del dipartimento tecnico e patrimonio Nicola Ceragioli ha quindi illustrato i progetti per le tre Case della Comunità, un intervento complessivo che ammonta a 2 milioni e 270mila euro.

 

Questi dunque i dettagli di ciascun progetto.

 

Casa della Comunità di Terminetto - Viareggio

L’investimento dell’Asl è di 820mila euro, di cui 400mila euro sono i fondi finanziati con il PNRR, mentre gli altri 420mila euro sono fondi di altro tipo. L’impresa esecutrice dei lavori è la Pluriservice Srl di Lucca.

Il cantiere sull’immobile messo a disposizione dal Comune di Viareggio viene aperto ufficialmente oggi (11 marzo 2024) e la conclusione dei lavori è prevista nel mese di gennaio 2025, con attivazione dei servizi nella rinnovata sede ad aprile 2025.

Il progetto prevede la manutenzione straordinaria dell’immobile per una riorganizzazione logistico-funzionale e, quindi, una riqualificazione della totalità della struttura per realizzare una 

Casa della Comunità con uno snodo complessivo di 965 metri quadrati. 

L’edificio si sviluppa su un unico piano e questo rappresenta un notevole vantaggio in termini di accessibilità da parte della cittadinanza.

In una parte dell’immobile, una volta ristrutturato con un miglioramento anche distributivo, sono previste le attività legate alla medicina generale: gli ambulatori di medici e pediatri di famiglia, una medicheria, la sede degli infermieri di famiglia e di comunità, accettazione e sale d’attesa.

In un’altra ala sono previsti gli ambulatori distrettuali: ambulatori specialistici, PUA (punto unico d’accesso per l’integrazione sociosanitaria), accettazione, Cup, sale d’attesa, più altri servizi accessori: sala riunioni, spogliatoi, depositi e ulteriori locali di logistica.

Previsti poi spazi adeguati per la Medicina legale.

La Casa della Comunità di Terminetto ospiterà, quindi, vari servizi sociosanitari, specializzazioni e medici e pediatria di famiglia. Sarà un luogo deputato a garantire attività territoriali di qualità e a prendersi cura dei cittadini, rappresentando un punto di riferimento costante con servizi anche specialistici che sarà così possibile trovare vicino alla propria abitazione.

 

 

Casa della Comunità di Camaiore

L’investimento dell’Asl è di 680mila euro, di cui 500mila euro sono i fondi finanziati con il PNRR, mentre gli altri 180mila euro sono fondi statali per opere indifferibili. L’impresa esecutrice dei lavori è la Paolinelli Matteo Costruzioni di San Giuliano Terme (Pisa).

Il cantiere viene aperto ufficialmente oggi (11 marzo 2024) e la conclusione dei lavori è prevista nel mese di giugno 2025, con attivazione dei servizi nella rinnovata sede a settembre 2025.

Il progetto prevede la ristrutturazione di parte dell’immobile garantendo continuità dei servizi offerti alla collettività, con una gestione del cantiere per fasi.

In fase progettuale si è valutata la soluzione migliore per collegare l’ampliamento all’attuale distretto socio-sanitario, per realizzare un’unica grande struttura, sotto il nome di Casa della Comunità di Camaiore con uno snodo complessivo di 1250 metri quadrati. 

I locali al piano terra, dove prima sorgeva la sede della Misericordia e ormai dismessi da tanti anni, ospiteranno tre ambulatori di medicina generale, una medicheria infermieristica e due sale d’attesa, oltre a ulteriori locali di logistica. Sono programmati: il rifacimento del pavimento, il risanamento delle pareti, oltre all’ampliamento del rapporto aeroilluminante con l’installazione di due nuove finestre. È previsto un miglioramento anche dal punto di vista distributivo: è stata progettata un’apertura che consente di accedere a una nuova sala d’attesa, mentre lungo il corridoio si inseriscono due bagni progettati per persone diversamente abili. In tutto saranno rigenerate 13 stanze.

Nei locali del terzo piano, che non presentano particolari criticità strutturali, essendo dismessi soltanto da pochi anni (prima del periodo del Covid), dopo i lavori di finitura necessari nelle 7 stanze oggetto di intervento, sorgeranno ben quattro nuovi ambulatori specialistici, oltre a una sala d’attesa/riunioni, un bagno e un archivio. Oltre a ciò, è stato previsto il totale rifacimento degli impianti tecnici, in linea alle normative vigenti. 

 

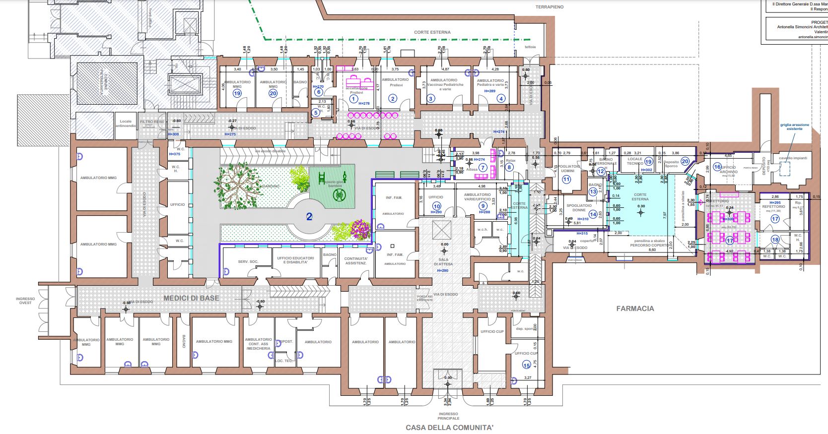
Casa della Comunità di Pietrasanta

L’investimento dell’Asl è di 720mila euro, di cui 500mila euro sono i fondi finanziati con il PNRR, mentre gli altri 220mila euro sono fondi statali per opere indifferibili. L’impresa esecutrice dei lavori è la Ediltec Srl di Montecatini Terme.

Il cantiere viene aperto ufficialmente oggi (11 marzo 2024) e la conclusione dei lavori è prevista nel mese di maggio 2025, con attivazione dei servizi nella rinnovata sede ad agosto 2025.

Il progetto prevede il restauro e la manutenzione straordinaria dell’immobile, garantendo la continuità dei servizi offerti alla collettività, con una gestione per fasi del cantiere e, quindi, una riqualificazione ed un ampliamento dell’immobile da trasformare in Casa della Comunità con uno snodo complessivo di 1.650 metri quadrati (comprese le corti). La superficie di ampliamento sarà di 912 metri quadrati.

L’edificio, come nel caso di Viareggio, si sviluppa su un unico piano, con vantaggi in termini di accessibilità da parte della cittadinanza.

Nell’immobile, che come detto, verrà ampliato, ristrutturato e adeguato, saranno presenti questi servizi: centro prelievi, ambulatori specialistici, spazi per le vaccinazioni, CUP, sede per assistenti sociali, locali per  medici e pediatri di famiglia, refettorio, servizi accessori e locali per la logistica.

Gli obiettivi perseguiti grazie all’ampliamento della sede sono essenzialmente: la razionalizzazione dei percorsi, una distribuzione più razionale ed organica delle attività, rispondenza ai criteri dell’accessibilità, miglioramento energetico. 

Anche la Casa della Comunità di Pietrasanta ospiterà, quindi, vari servizi sociosanitari e medici e pediatria di famiglia. Sarà un luogo deputato a garantire attività territoriali di qualità e a prendersi cura dei cittadini, rappresentando un punto di riferimento costante con servizi anche specialistici che sarà così possibile trovare vicino alla propria abitazione.

 

In allegato alcune foto dell'incontro di oggi (11 marzo) a Lido di Camaiore, della consegna del progetto da parte dal presidente Giani alle tre ditte incaricate e dei progetti e rendering

 

(sdg)

Attachments:
FileLast modified
 camaiore 0.bmp11-03-2024 15:26
 Camaiore 1.jpg11-03-2024 15:25
 Camaiore 2.jpg11-03-2024 15:25
 Camaiore 3.jpg11-03-2024 15:25
 Camaiore 4.jpg11-03-2024 15:25
 Camaiore 5.PNG11-03-2024 15:25
 Camaiore 6.jpg11-03-2024 15:25
 Consegna progetto Camaiore.JPG11-03-2024 15:23
 Consegna progetto Pietrasanta.JPG11-03-2024 15:23
 Consegna progetto Terminetto.JPG11-03-2024 15:23
 immagine pietrasanta.jpg11-03-2024 15:26
 Incontro 1.JPG11-03-2024 15:22
 Incontro 2.JPG11-03-2024 15:22
 Incontro 3.JPG11-03-2024 15:22
 Incontro 4.JPG11-03-2024 15:22
 Incontro 5.JPG11-03-2024 15:22
 Incontro 6.JPG11-03-2024 15:22
 Incontro 7.JPG11-03-2024 15:23
 Locandina Camaiore.jpg11-03-2024 15:26
 Locandina Pietrasanta.jpg11-03-2024 15:26
 Locandina Terminetto.jpg11-03-2024 15:24
 pianta Pietrasanta.JPG11-03-2024 15:26
 Pianta Terminetto.JPG11-03-2024 15:25
 Pietrasanta 1.jpg11-03-2024 15:26
 Pietrasanta 2.jpg11-03-2024 15:27
 Pietrasanta 3.jpg11-03-2024 15:26
 Pietrasanta 4.jpg11-03-2024 15:26
 Terminetto 1.jpg11-03-2024 15:24
 Terminetto 2.jpg11-03-2024 15:25
 Terminetto 3.jpg11-03-2024 15:25